French
Hill
HOUSING SCHEME IN FLORAC-TROIS-RIVIÈRES
Sat nestled between two opposing escarpments, Florac is characterised by its tight and steep alleyways that connect the different bands that make up the town. The townscape varies hugely, from the low lying and expansive Le Tarnon, to the dense and weaving medieval center, and the steep gardens stepping up the hillside. My project is situated near the top of the town, a location half belonging to the dense medieval grain and half to the green sub-urban carpet.
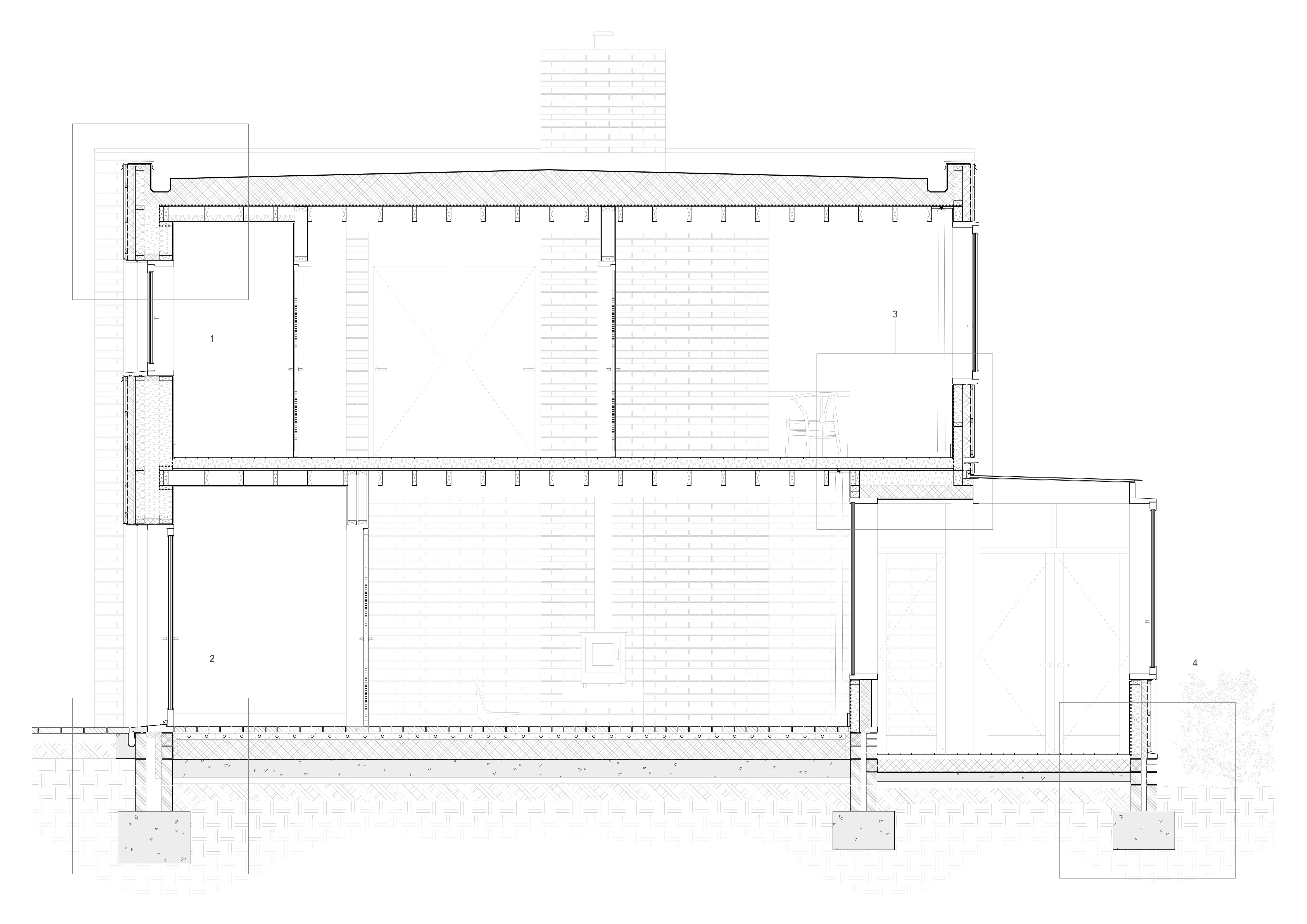
The scheme consists of 4 detached houses nestled together on a site . Together they form a new street, using steps and stairs to weave up a steep alleyway, past shared terraced gardens and covered porches. Each house has been designed as split level, allowing them to sit comfortably on the slope and avoiding huge retaining walls. The design was conceived as a collection of structures sitting within a landscape of stone walls. This has been reflected in the material choices, rendered hempcrete atop cyclopean concrete walls - hempcrete has been chosen for its high thermal mass and low embodied carbon. Thermal mass has been further enhanced with clay block vaults which also protect the exposed joists from fire.
The scheme consists of 4 detached houses nestled together on a site . Together they form a new street, using steps and stairs to weave up a steep alleyway, past shared terraced gardens and covered porches. Each house has been designed as split level, allowing them to sit comfortably on the slope and avoiding huge retaining walls. The design was conceived as a collection of structures sitting within a landscape of stone walls. This has been reflected in the material choices, rendered hempcrete atop cyclopean concrete walls - hempcrete has been chosen for its high thermal mass and low embodied carbon. Thermal mass has been further enhanced with clay block vaults which also protect the exposed joists from fire.
Tutor: Stephen Taylor



























Colour
Film
PHOTOGRAPHY























Hello
Wood
HELLO WOOD FESTIVAL
Set in the Hungarian countryside this week long festival involved building timber structures in groups. Led by architects Agnieszka Roś and Szabolcs Egyed our team constructed a 6m tall tower with a viewing platform. The tower was imagined as a representation of architecture. Its sides decorated with doors, stairs and windows, celebrating the constituent components of a building.
The project was very enjoyable and a valuable lesson in the realities of construction. We had to continuously adapt and change the design and method of construction - even bringing in a crane last minute to raise the top half of tower, something that was originally planned to be done by hand.
The project was very enjoyable and a valuable lesson in the realities of construction. We had to continuously adapt and change the design and method of construction - even bringing in a crane last minute to raise the top half of tower, something that was originally planned to be done by hand.






Hidden
World
MASTER’S THESIS PROJECT
My thesis project explored the unit theme of ‘The Hidden Geometry of Nature’, taken from Jacques Herzog’s 1988 lecture in which he suggests turning to the invisible world as a generator for new architectural expression, unburdened by existing physical and cultural contexts. My particular interest revolved around the relationship between the natural and the artificial - two worlds that often combine with complex and unpredictable results. Throughout the design process I looked to capture some of the complexities I had observed, looking to meld ideas of structured rationality and ordering with more naturalistic forms of growth and randomness. These two approaches would often clash and contradict, but I decided to embrace the ambiguity and richness of the results.
The final proposal, a primary school in the Isle of Dogs, was conceived as a new ecosystem within an existing estate - Its plan appearing as a scattering of objects. Part of this ecosystem is a three storey timber superstructure, eighty metres in length, that works in two ways: enclosing a new protected area of garden to its south and connecting a series of spaces, some existing and some new. This block sits prominently within its context, with a scale not totally dominated by the surrounding towers of the estate and Canary Wharf beyond. Space is situated loosely within this structure, expanding outwards in places to engage existing structures or create new forms, and contracting in parts to expose the structure and form clear entrance spaces.
The final proposal, a primary school in the Isle of Dogs, was conceived as a new ecosystem within an existing estate - Its plan appearing as a scattering of objects. Part of this ecosystem is a three storey timber superstructure, eighty metres in length, that works in two ways: enclosing a new protected area of garden to its south and connecting a series of spaces, some existing and some new. This block sits prominently within its context, with a scale not totally dominated by the surrounding towers of the estate and Canary Wharf beyond. Space is situated loosely within this structure, expanding outwards in places to engage existing structures or create new forms, and contracting in parts to expose the structure and form clear entrance spaces.
Tutors: Peter St John & Amy Grounsell



















































Swedish
Home
TECHNOLOGY GROUP PROJECT
For this project we were asked to design a tectonic system with a carefully developed structure and envelope for a low energy house that embraces Stockholm’s climate, taking into account the environmental performance and thermal comfort of the building. In our scheme an emphasis was placed on the hierarchy of spaces, with a gradation of openness. Spaces for retreat are placed to the north, protected by a thick wall with significant insulation. To the south rooms open up: expansive glazing providing solar gain from the low winter sun and openings allowing passive ventilation during the warmer months. Brick diaphragm party walls and a central hearth add valuable thermal mass and a winter garden acts as a thermal buffer, forming another ‘layer’ of thermal comfort.
Tutors: James Payne & David Grandorge
Tutors: James Payne & David Grandorge

















